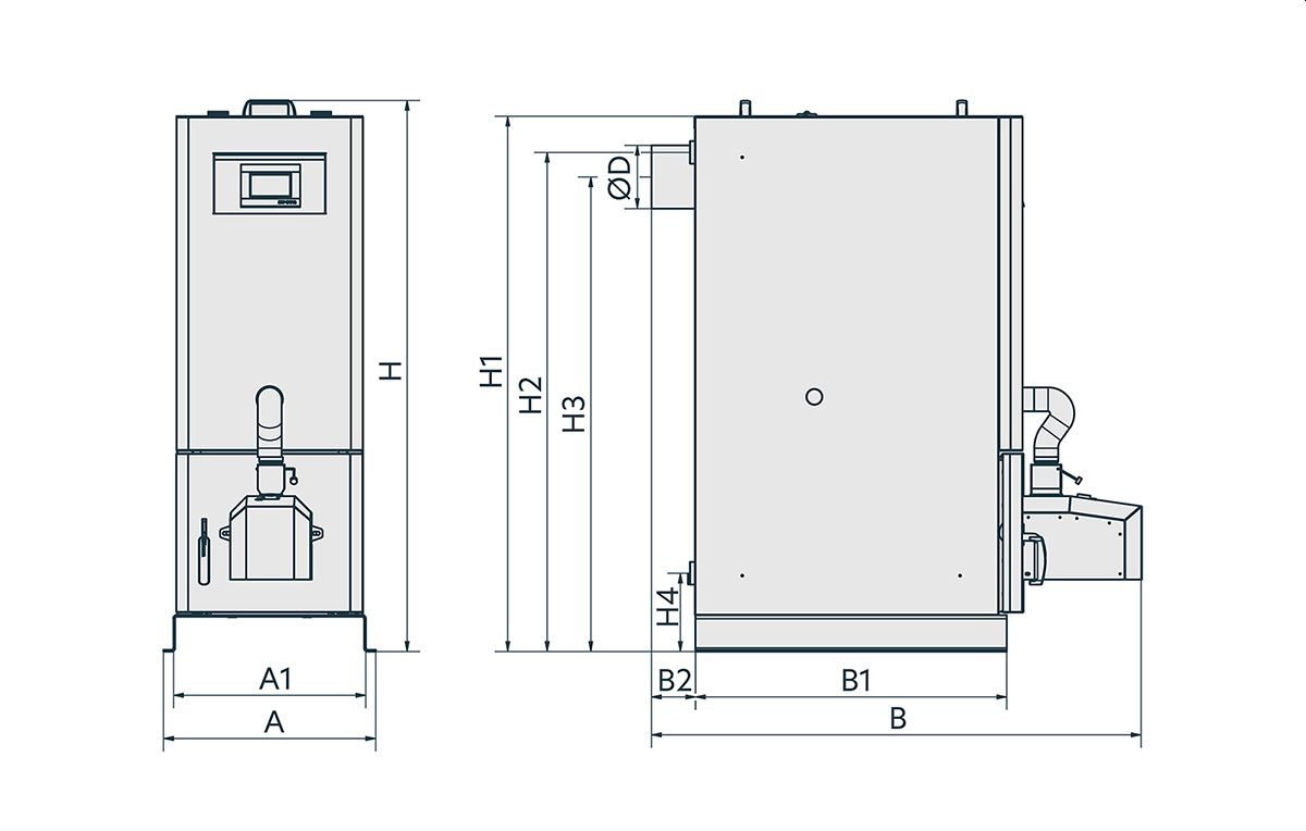
Kamen PERFEKT Bio pelletikatlad 10, 15 ja 20 kW

Lisainfot leiad: www.kamen.com.pl

 

 

KAMEN pelletikatlad